Mieszkanie na sprzedaż Piła, Zielona Dolina

3 pokoje
64.58 m²
10 684,42 zł/m2
3 piętro
PIL-MS-1235
Oblicz ratę kredytu

690 000 zł

Mieszkanie na sprzedaż
Nowa oferta

Szczegóły oferty

Symbol oferty PIL-MS-1235
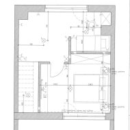
Powierzchnia 64,58 m²
Powierzchnia użytkowa [m2] 64,58 m²
Powierzchnia balkonów/tarasów 31,42 m²
Liczba pokoi 3
Rodzaj budynku apartamentowiec
Technologia budowlana tradycyjna murowana
Standard
Opłaty w czynszu administracja, Części wspólne, fundusz remontowy, ogrzewanie, sprzątanie, Winda, woda ciepła, woda/ryczałt na wodę, wywóz nieczystości, zaliczka na fundusz remontowy
Opłaty wg liczników prąd, woda
Piętro 3
Garaż miejsce parkingowe przy budynku
Stan lokalu bardzo dobry
Mies. czynsz admin. 920 PLN
Okna PCV 3 szyby, ciepły montaż
Instalacje ELEKTRYCZNA
Balkon taras
Liczba balkonów 1
Liczba tarasów 1
Rok budowy 2025
Widok na osiedle
Woda ciepła - miejska
Dojazd asfalt
Otoczenie las
Ogrzewanie C.O. Z SIECI MIEJSKIEJ
Winda tak
Liczba wind 1
Tarasy taras duży
Usytuowanie środkowe
Pomieszczenia
Powierzchnia pokoi 25,04; 12,00; 12,30 m2
Podłogi pokoi panele podłogowe
Typ kuchni umeblowana i wyposażona
Rodzaj kuchni aneks kuchenny - połączony z salonem
Typ łazienki razem z wc
Liczba łazienek 2
Powierzchnia łazienki [m2] 4,20; 2,50 m2
Glazura łazienki nowego typu
Podłoga łazienki gres
Wyposażenie łazienki lustro, prysznic, umywalka, wanna, WC
Liczba przedpokoi 1
Powierzchnia przedpokoi 3,42 m2
Podłoga przedpokoi panele podłogowe
Arkadiusz Sobolewski

Arkadiusz Sobolewski

Pośrednik w obrocie nieruchomościami
Nr licencji: 5721

Napisz wiadomość 58 Ofert

Opis nieruchomości

Nowoczesny apartament z antresolą, dwoma balkonami oraz imponującym tarasem.

Antresola zagospodarowana na łazienkę z prysznicem, sypialnię oraz pokój dziecięcy.

Prezentujemy Państwu na sprzedaż wyjątkowy, wykończony w wysokim standardzie apartament o pow. użytkowej 64,58 m2 zlokalizowany w Pile na os. Zielona Dolina.


Mieszkanie znajduje się na 3 piętrze w apartamentowcu z windą w Pile przy ul. Konstancji.
Posiada funkcjonalny okład 3 pokoi, idealny zarówno dla rodziny, jak i osób ceniących komfortową przestrzeń.

W cenie miejsce postojowe w hali garażowej.

Najważniejsze atuty nieruchomości:

  • Nowoczesny system Smart Home z możliwością sterowania z telefonu gdzie skonfigurowane są: oświetlenie, ogrzewanie, rolety zewnętrzne z opcją ustawień meteorologicznych, AGD (przy dostosowanych opcjach osprzętu); TV Ambilight.
  • Ogrzewanie podłogowe w całym mieszkaniu zapewniające komfort cieplny (również pod prysznicem).
  • Podłogi w pokojach wyłożone panelami z fugą klasy AC6.
  • Drzwi bezprzylgowe z ukrytymi zawiasami.
  • Rolety antywłamaniowe zewnętrzne oraz żaluzje typu plisy wewnątrz.
  • Łazienka na dole: armatura KLUDI podtynkowa oraz akrylowa wanna (163 cmx73 cm), WC Grohe, zabudowana szafa z frontami antyfinger firmy RARO (a w niej dodatkowo podłączenie pod pralkę).
  • Łazienka na górze: armatura KLUDI podtynkowa, WC Grohe, prysznic z ogrzewaniem podłogowym, deszczownica, drzwiczki szklane ze szkła hartowanego wykonywane przez szklarza, odpływ liniowy, lustro z oświetleniem wiszącym.
  • Kuchnia wyposażona wysokiej jakości sprzęt AGD firmy Bosch (płyta indukcyjna, lodówko-zamrażalka szerokości 70cm, piekarnik z funkcją Airfryer, pochłaniacz,  młynek na odpady firmy TEKA), meble na wymiar z frontami antyfinger firmy RARO,  blaty kuchenne z konglomeratu firmy RARO, elegancji rozkładany stół ceramiczny wraz z krzesłami.
  • W przedpokoju szafa typu Komandor z praktyczną dolną wnęką na buty.
  • Pomieszczenie gospodarcze, w którym znajduje się: węzeł cieplny, rozdzielnia prądu, sterowania do smarthome, światłowód, regały.
  • Górna część mieszkania z rozkładem dwustronnym.
  • Możliwość zabudowania dużego tarasu i uzyskania dodatkowego pomieszczenia (zgoda dewelopera w akcie notarialnym oraz uszykowany kosztorys wykonawstwa).
  • Umeblowanie widoczne na zdjęciach a dokładnie w pomieszczeniach na górze: możliwość zakupu i podlegają osobnym rozmowom z właścicielem.
  • Na obu kondygnacjach wyprowadzony przewód elektryczny odpowiedni dla klimatyzacji (3x3,5mm2)
  • Niezawodnie rozprowadzona instalacja internetowa, na dole ruter i hotspot, na górze hotspot.

Mieszkania posiada duży, komfortowy taras o pow. 25,90 m2 oraz dwa balkony każdy z nich o pow. 5,52 m2 (po jednym na każdej kondygnacji).

To idealna propozycja dla osób, które poszukują nowoczesnego, komfortowego i świetnie wyposażonego apartamentu w prestiżowej lokalizacji.


Zapraszam na prezentację!
 

Lokalizacja nieruchomości

Kalkulatory

Kalkulator kredytowy

Wysokość raty

PLN
%

Kalkulator kosztów

Podatek od czynności cywilno-prawnych

Taksa notarialna
(opłata notarialna)

Wniosek o wpis do WKW

VAT od prowizji
agencji nieruchomości

Vat od taksy notarialnej
(opłaty notarialnej)

Prowizja agencji nieruchomości

Wypisy aktu notarialnego

Razem

Uwaga: mogą wystąpić dodatkowe opłaty za założenie księgi wieczystej oraz ustanowienie hipoteki.

PLN
PLN
PLN
PLN
PLN
PLN
%
PLN

Podobne oferty

Mieszkanie na sprzedaż

Piła, Zielona Dolina

3 pokoje 84 m2 8 241,63 zł/m2

Mieszkanie na sprzedaż

Piła, Zielona Dolina

3 pokoje 77 m2 9 866,29 zł/m2

Mieszkanie na sprzedaż

Piła, Zielona Dolina

4 pokoje 71 m2 8 887,63 zł/m2

Pośrednik w obrocie nieruchomościami

Proszę wprowadzić poprawne imię i nazwisko
Proszę wprowadzić poprawny numer telefonu
Proszę wprowadzić poprawny adres e-mail
Proszę zaznaczyć wymagane zgody
Rozwiąż równanie:
20 6
Niepoprawny wynik